Vážení zákazníci, vyzvednutí osobních odběrů nově probíhá na nové adrese Tiskařská 563/6. Více informací naleznete zde.
MSK-AFP 125 protimrazová ochrana
Kód: V730Detailní popis produktu
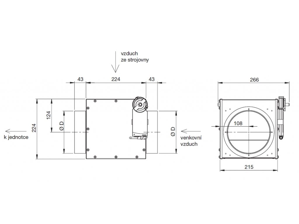
Skříň je vyrobena z pozinkovaného ocelového plechu. Skříň doporučujeme po montáži do potrubí opatřit z vnější strany izolací Armaflex s tloušťkou minimálně 8 mm. Na skříni je namontován servopohon a protimrazový termostat F2000 N. Klapka MSK-AFP je určena jako ochrana proti zamrznutí rekuperátorů jednotek EHR 140, 225, 280, 300, 325 a 480, DOMEO 210, IDEO 325 a 450.
El. připojení
Elektrické připojení dle schématu do „svorkovnice AFP“ umístěné na plášti klapky (svorky L, N, PE). Napájecí napětí 1×230 V / 50 Hz.
Regulace
Na protimrazovém termostatu nastavit teplotu na 0 °C. Při poklesu teploty pod tuto nastavenou teplotu začne klapka uzavírat přívod chladného venkovního vzduchu do jednotky a dojde k přimíchávání teplého vzduchu ze strojovny do venkovního vzduchu. Zvýšení teploty vzduchu na vstupu do rekuperátoru zajistí jeho odmrazení. Po navýšení teploty odpadního vzduchu nad 0 °C dojde k opětovnému otevření přívodu venkovního vzduchu do jednotky.
Montáž
Klapku MSK-AFP montovat vždy do přívodního potrubí venkovního vzduchu do jednotky dle schématu. Kapiláru termostatu montovat do potrubí odpadního vzduchu. Kapiláru je zakázáno ostře ohýbat – min. poloměr ohybu je 20 mm! Montáž klapky je možná v jakékoliv poloze. Musí být umístěna tak, aby byl umožněn přístup ke svorkovnici, termostatu a servopohonu.
Příslušenství
• izolace pro eliminaci rizika kondenzace je součástí dodávky
• přívodní kabel není součástí dodávky
• přívodní kabel není součástí dodávky
Doplňkové parametry
| Kategorie: | Protimrazové ochrany |
|---|---|
| ? ⚪️🔵 Průměr potrubí (mm): | 125 |
| Značka: | Soler & Palau |
| Rozměr Průměr D: | 123 |
Buďte první, kdo napíše příspěvek k této položce.
Přidat hodnocení
Buďte první, kdo napíše příspěvek k této položce.
| Výrobní společnost : | S&P Sistemas de Ventilación, S.L.U. |
|---|---|
| Adresa : | Llevant, 4 Polígono Industrial Llevant 08150 Parets del Vallès Barcelona, Španělsko |
| E-mail : | consultas@solerpalau.com |




